W kamienicy przy Placu Weyssenhoffa 9 znajdują się dwa lokale użytkowe na parterze budynku, w doskonałej lokalizacji w centrum Bydgoszczy.


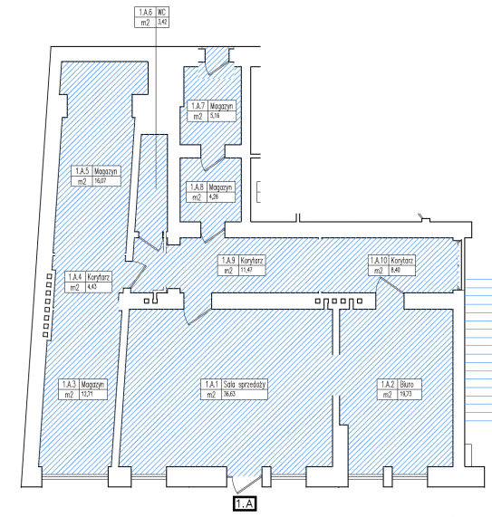
Lokal 1A
9 000 zł
netto + VAT / miesiąc · 130 m²
Stan surowy zamknięty, przygotowany do adaptacji przez przyszłego najemcę. Doskonała lokalizacja na parterze, przy głównym wejściu od strony ulicy.
Rzut architektoniczny — Lokal 1A
Lokal 1B
Wynajęty
130 m² · najemca: Żabka
Lokal zajęty przez sklep Żabka. W przypadku zmiany statusu — skontaktuj się z operatorem.
Rzut architektoniczny — Lokal 1B